+BOYD
2023
Anderlecht
Residential
500 m²
In Progress
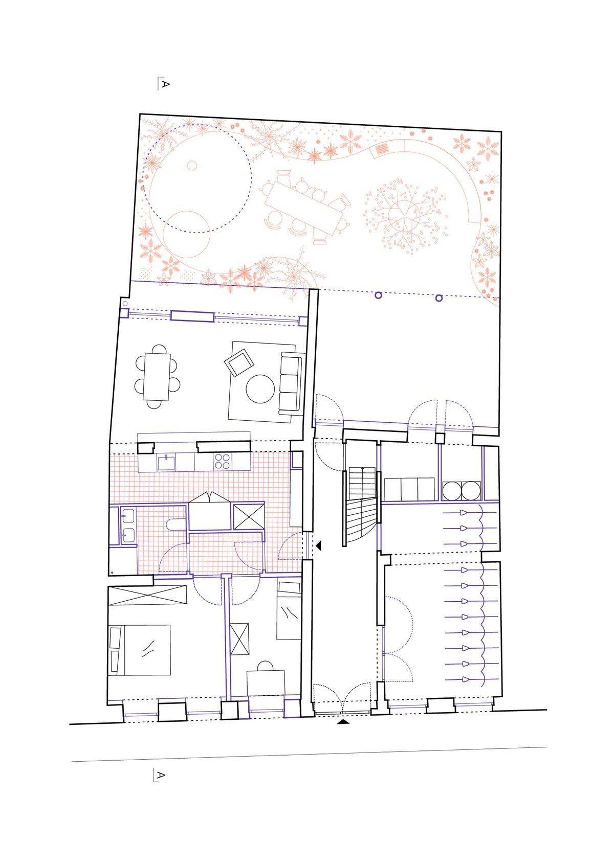
This kitchen on-roof extension offers an opportunity to activate a whole new exterior space in a dense plot that didn’t have any.
The extension also frees up space in the current –very cramped– kitchen, thereby opening the living space to the outside and creating a two-sided apartment.
Since Boyd’s goal of growing his own food aligns perfectly with the need to reduce the neighborhood’s impermeability, the rest of the roof will be covered with an intensive green roof system.
Under this new inside room, a large workshop on the ground floor connects two separate living areas, located in a main building and a single-story rear house, which will soon be self-sufficient in terms of basic utilities.
- Client
- Private
- Location
- Anderlecht
- Program
- Residential
- Status
- In Progress
- Surface
- 500 m²
- Structure
- Roman Gladysh
- Energy
- RYA


















































































































































